
ワン君
築5年ほどの、築浅住宅です!
オーナー様が大事にお住まいになられているので
室内大変キレイです!
目次
価格
4,998万円
土地面積
187.82㎡(56.81坪)
建物面積
114.27㎡(34.56坪)
物件の場所
物件の情報
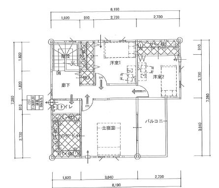
間取り
4LDK


配置図

ギャラリー

アピールポイント
ご自宅前にお車が複数台とめられます!
物件写真

















セルフカフェ、キッズスペース、プライベートソファ、大型モニタなど完備。不動産の[賃貸][売買][管理]、その他どのようなことでも、どうぞお気軽にご相談ください。